Acai 264


  • 4
  • 2.5
  • 2

Floor area: 264 m²

The Acai design features a modern Hampton-style exterior with cladding features, dutch-gabled rooflines, large windows and spacious front porch with white columns for a timeless look.

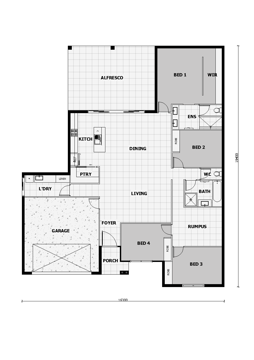
Upon entering the house your greeted by a sense of openness. The living room, dining area, and kitchen seamlessly flow together to create an airy atmosphere, before the large glazed doors irresistibly draw you outside to huge alfresco area, creating a perfect space for entertaining.

Designed with the modern family in mind, the Acai includes a kid’s quarters on one side of the house. This area includes spacious bedrooms for each child, a shared bathroom and a dedicated rumpus area, allowing space for children to play and relax. The master suite is situated on the opposite side of the house from the kids’ quarters, offering privacy and tranquility for the homeowners. The master bedroom features a spacious walk through wardrobe as well as an ensuite bathroom with a luxurious walk-in shower, and dual vanities.

This design offers a perfect blend of functionality, style, and comfort, creating an ideal home for families looking for modern living with ample space for both indoor and outdoor activities.

 




Standard Features
  • Air-conditioning to Living Area & Master Bedroom
  • Alfresco
  • Complete with Turf & Fencing
  • Dining Room
  • Double Lock-up Garage
  • Ensuite
  • Foyer
  • Kitchen
  • Laundry Room
  • Linen Press
  • Open plan Kitchen, Living & Dining
  • Outdoor Alfresco Entertainment Area
  • Porch
  • Premium Dishwasher, Oven, Cooktop & Rangehood
  • Quality Carpet to Bedrooms
  • Quality Fixtures & Fittings
  • Rumpus Room
  • Stone Benchtops to Kitchen & Bathrooms
  • Walk-in Pantry
  • Walk-in Robe

Facade Options

Contact Information

View Listings
bluepalm
  • bluepalm

Enquire About This Property

Mortgage Calculator

Monthly
  • Principal & Interest
  • Property Tax
  • Home Insurance
$
$
%
$
$
Disclaimer – © Blue Palm Property 2019 All rights reserved. This website and its content is copyright of Blue Palm Property Pty Ltd. Any redistribution or reproduction of part or all of the contents in any form is prohibited. All images including floor plans are for illustration purposes only. Images & photographs may depict features, fixtures & finishes such as furniture, window coverings, landscaping, pools, water features and decorative lighting (but not limited to) which are not included in the standard house price or any price stated. Facades are indicative only, conceptual in nature & subject to change. Mortgage Calculator is indictive only, terms & interest rates are subject to change and are not necessarily reflective of available mortgages.

Compare listings

Compare
bluepalm
  • bluepalm