• 4
  • 2.5
  • 2

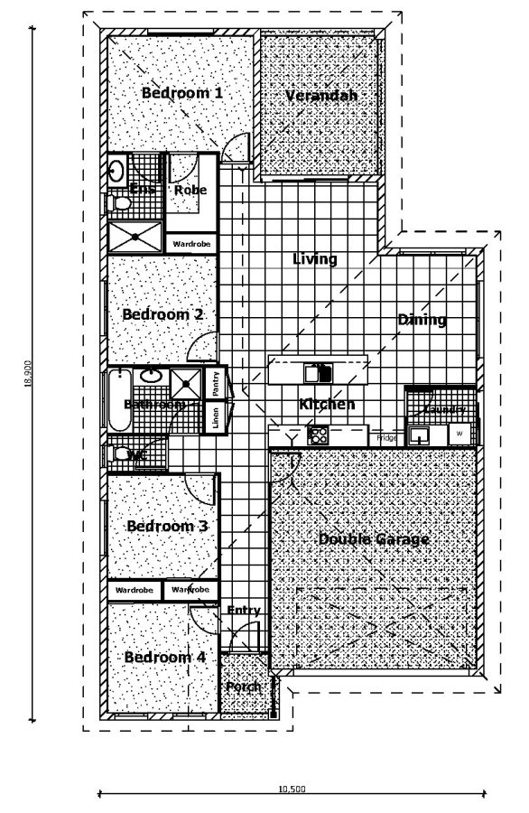
Floor area: 176 m²

The Cascade is one of our most popular homes, it’s clever open plan design is practically laid out to include all the features you need in a compact family home.

The home includes a private, ensuited master bedroom to the rear of the home, an open-plan kitchen with a walk in pantry and a spacious covered alfresco that is ideal when entertaining family & friends.

This charming yet compact home, is designed to make maximum use of space making it great value for money, perfect for investors, first home buyers or those looking to downsize.




Standard Features
  • Alfresco
  • Dining Room
  • Double Lock-up Garage
  • Ensuite
  • Foyer
  • Kitchen
  • Laundry Room
  • Linen Press
  • Open plan Kitchen, Living & Dining
  • Outdoor Alfresco Entertainment Area
  • Pantry
  • Porch
  • Storage
  • Walk-in Pantry
  • Walk-in Robe


  • 4
  • 2.5
  • 2

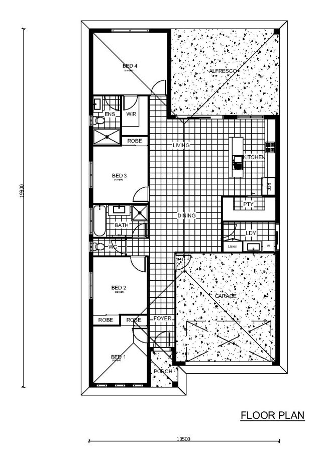
Floor area: 191 m²

The Cascade is one of our most popular homes, it’s clever open plan design is practically laid out to include all the features you need in a compact family home.

The home includes a private, ensuited master bedroom to the rear of the home, an open-plan kitchen with a walk in pantry and a spacious covered alfresco that is ideal when entertaining family & friends.

This charming yet compact home, is designed to make maximum use of space making it great value for money, perfect for investors, first home buyers or those looking to downsize.




Standard Features
  • Alfresco
  • Dining Room
  • Double Lock-up Garage
  • Ensuite
  • Foyer
  • Kitchen
  • Laundry Room
  • Linen Press
  • Open plan Kitchen, Living & Dining
  • Outdoor Alfresco Entertainment Area
  • Pantry
  • Porch
  • Storage
  • Walk-in Pantry
  • Walk-in Robe


  • 4
  • 2.5
  • 2

Floor area: 201 m²

The Cascade is one of our most popular homes, it’s clever open plan design is practically laid out to include all the features you need in a compact family home.

The home includes a private, ensuited master bedroom to the rear of the home, an open-plan kitchen with a walk in pantry and a spacious covered alfresco that is ideal when entertaining family & friends.

This charming yet compact home, is designed to make maximum use of space making it great value for money, perfect for investors, first home buyers or those looking to downsize.




Standard Features
  • Alfresco
  • Dining Room
  • Double Lock-up Garage
  • Ensuite
  • Foyer
  • Kitchen
  • Laundry Room
  • Linen Press
  • Open plan Kitchen, Living & Dining
  • Outdoor Alfresco Entertainment Area
  • Pantry
  • Porch
  • Storage
  • Walk-in Pantry
  • Walk-in Robe

Facade Options

Contact Information

View Listings
bluepalm
  • bluepalm

Enquire About This Property

Mortgage Calculator

Monthly
  • Principal & Interest
  • Property Tax
  • Home Insurance
$
$
%
$
$
Disclaimer – © Blue Palm Property 2019 All rights reserved. This website and its content is copyright of Blue Palm Property Pty Ltd. Any redistribution or reproduction of part or all of the contents in any form is prohibited. All images including floor plans are for illustration purposes only. Images & photographs may depict features, fixtures & finishes such as furniture, window coverings, landscaping, pools, water features and decorative lighting (but not limited to) which are not included in the standard house price or any price stated. Facades are indicative only, conceptual in nature & subject to change. Mortgage Calculator is indictive only, terms & interest rates are subject to change and are not necessarily reflective of available mortgages.

Compare listings

Compare
bluepalm
  • bluepalm