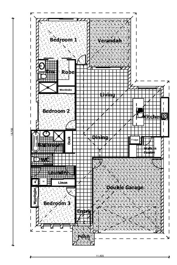
This compact three bedroom home has been designed with open plan living and entertaining at the heart of the layout. Be the envy of family and friends with a gourmet kitchen and an undercover outdoor Alfresco area that is just perfect for entertaining. Alternatively, you may prefer to relax and unwind in your own private Master suite fit with an ensuite and walk in robe.